Crawlspace: $262,883 | Basement: $297,190
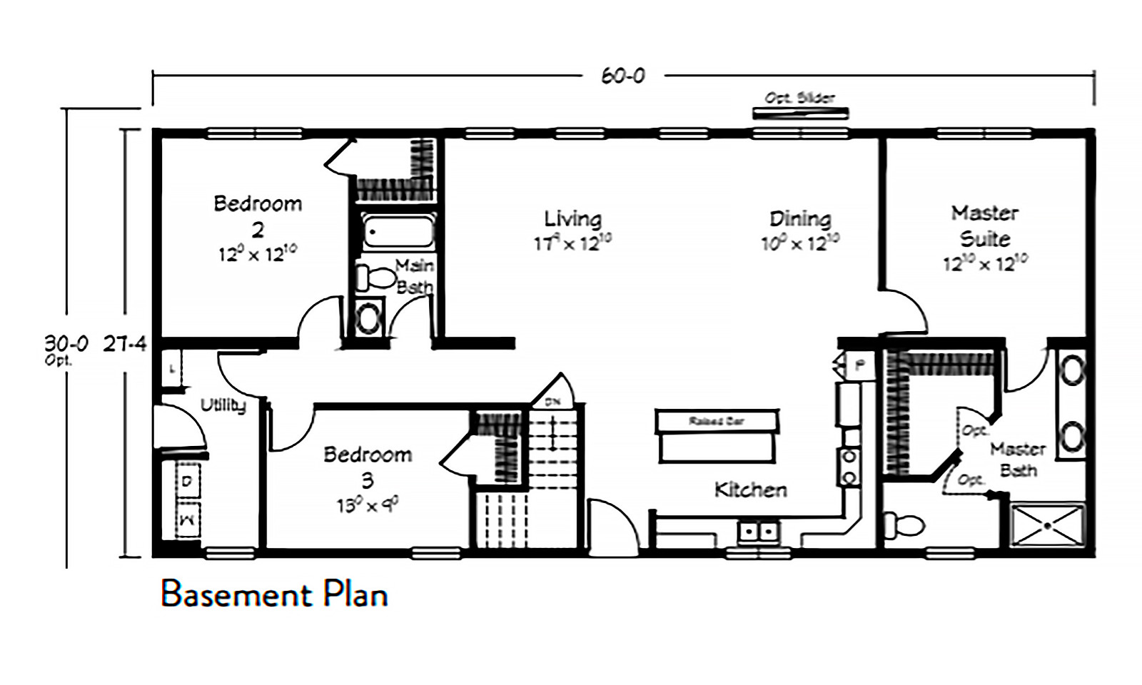
1650 sq/ft | Ranch | 3 bedroom | 2 baths
A premier option in modular ranch houses, Elberta offers spacious, open living in a 1,650-square-foot ranch-style modular home.
Designed with three bedrooms and two bathrooms, this floor plan creates a comfortable, inviting environment perfect for family life or entertaining guests.
Ranch houses from JDM Homes offer a full residence at an affordable cost. This model features of this home are a large main living area, a private owner’s suite, and flexible design options to make the space truly your own. Every detail reflects JDM Homes’ commitment to comfort, quality, and enduring craftsmanship.
Floor Plan:
JDM Homes is an authorized builder for:
The largest family-owned, off-site, modular home manufacturer in the United States. Ritz-Craft’s custom designed modular homes utilize today’s latest and most proven construction methods to meet or exceed state home building codes — and your dream home expectations.
Elberta Gallery
Ranch houses offer a long, low-profile design that emphasizes simplicity, comfort, and effortless everyday living. Every layout is fully customizable to fit your needs.
Standard Price Includes:
- Fully Finished Home
- Standard HVAC Package
- Electrical Connections
- Plumbing Connections
More from JDM Homes
These beautiful ranch houses are customizable and permanent dwellings that are characterized by methods for quick assembly of the various sections of the structure, unlimited flexibility of materials and layout, and building standards that ensure your structure meets federal and local building codes. JDM Homes strives to continuously innovate and provide premier home constructions that will meet whatever your need is. If you’re interested in other types of projects, check out some of our other dwelling structures such as A-Frame cottages, as well as our fully custom home projects.
JDM Structures is a family-owned business dedicated to building high-quality custom homes, learn more from our JDM Structures website about our story, and our mission to bring innovation into your home.






