Crawlspace: $255,520 | Basement: $289,319
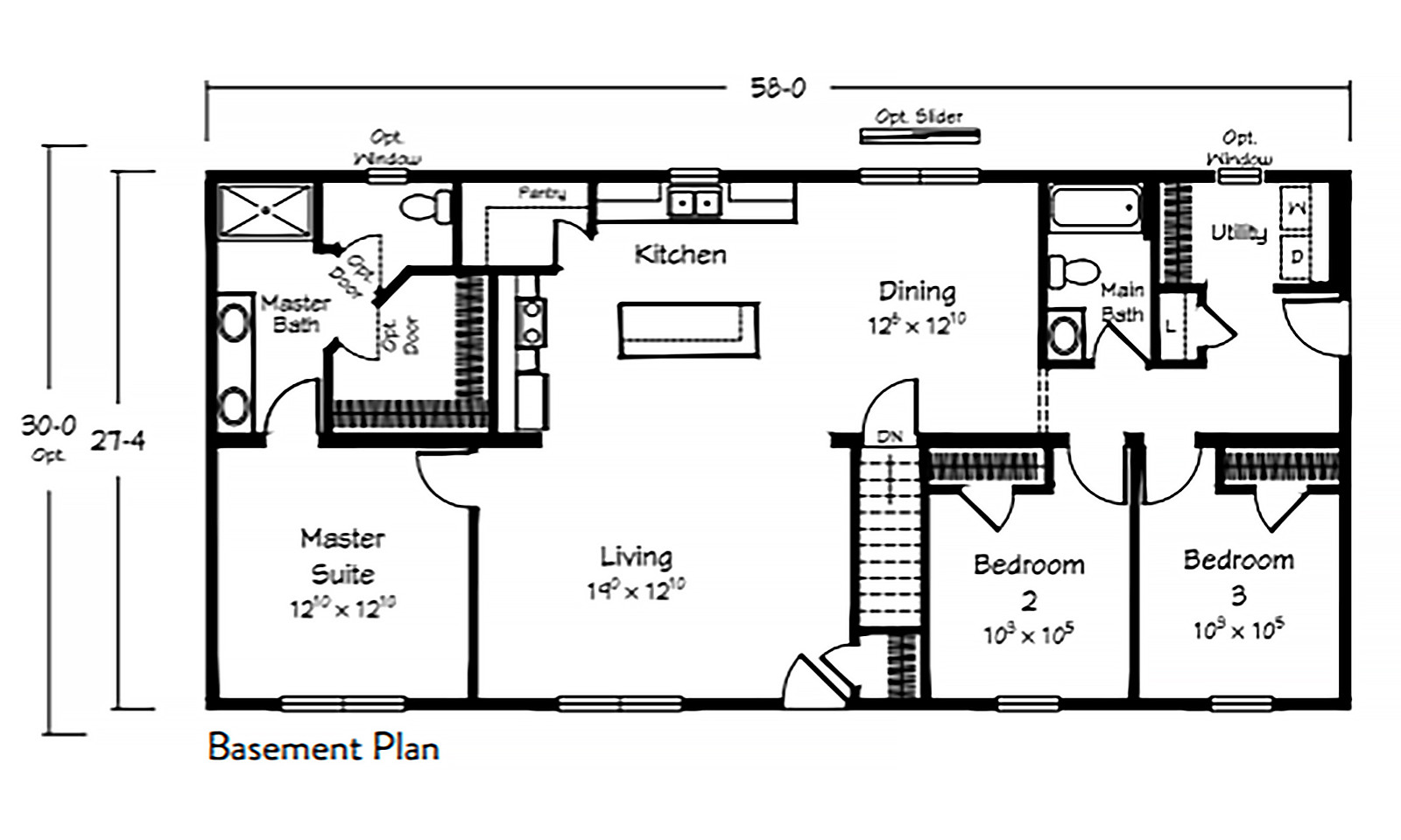
1595 sq/ft | Ranch | 3 bedroom | 2 baths
Ranch house building plans like the Easy Street model brings relaxed, single level living to life with 1,595 square feet of thoughtfully designed space.
This 3-bedroom, 2-bath ranch modular home features a layout that balances open living areas with comfortable private spaces. All of the benefits of customization and ease are provided for when working to build a home like this.
Ranch house building plans are some of the best options that emphasize craftsmanship, energy efficiency, and timeless curb appeal. It's perfect for families or couples looking for a balance of comfort and style.
Floor Plan:
JDM Homes is an authorized builder for:
The largest family-owned, off-site, modular home manufacturer in the United States. Ritz-Craft’s custom designed modular homes utilize today’s latest and most proven construction methods to meet or exceed state home building codes — and your dream home expectations.
Easy Street Gallery
Ranch-style modular homes offer a long, low-profile design that emphasizes simplicity, comfort, and effortless everyday living. Every layout is fully customizable to fit your needs.
Standard Price Includes:
- Fully Finished Home
- Standard HVAC Package
- Electrical Connections
- Plumbing Connections
More from JDM Homes
These beautiful ranch house building plans are customizable and permanent dwellings that are characterized by methods for quick assembly of the various sections of the structure, unlimited flexibility of materials and layout, and building standards that ensure your structure meets federal and local building codes. JDM Homes strives to continuously innovate and provide premier home constructions that will meet whatever your need is. If you’re interested in other types of projects, check out some of our other dwelling structures such as A-Frame cottages, as well as our fully custom home projects.
JDM Structures is a family-owned business dedicated to building high-quality custom homes, learn more from our JDM Structures website about our story, and our mission to bring innovation into your home.






