Crawlspace: $225,888 | Basement: $256,016
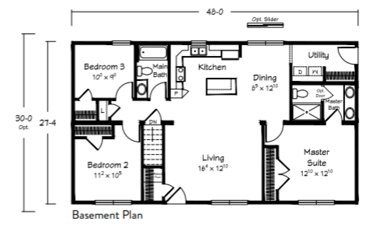
1320 sq/ft | Ranch | 3 bedroom | 2 baths
The Azalea is one of our simple ranch homes, this one blends open living with cozy, functional spaces.
Featuring three bedrooms and two bathrooms, this 1,320-square-foot floor plan offers a bright, inviting atmosphere for family gatherings or quiet evenings in.
Ranch homes like this one include a spacious main living area, a private primary suite, and smart use of every square foot. Its flexible design allows for custom finishes and optional upgrades to match your lifestyle.
Floor Plan:
JDM Homes is an authorized builder for:
The largest family-owned, off-site, modular home manufacturer in the United States. Ritz-Craft’s custom designed modular homes utilize today’s latest and most proven construction methods to meet or exceed state home building codes — and your dream home expectations.
Azalea Gallery
Ranch homes like this one offer a long, low-profile design that emphasizes simplicity, comfort, and effortless everyday living. Every layout is fully customizable to fit your needs.
Standard Price Includes:
- Fully Finished Home
- Standard HVAC Package
- Electrical Connections
- Plumbing Connections
More from JDM Homes
These beautiful ranch homes are customizable and permanent dwellings that are characterized by methods for quick assembly of the various sections of the structure and building standards that ensure your structure meets federal and local building codes. All of our methods are meticulously crafted to ensure you get the most out of your new home build process. JDM Homes strives to continuously innovate and provide premier home constructions that will meet whatever your need is. If you’re interested in other types of projects, check out some of our other dwelling structures such as A-Frame cottages, as well as our fully custom home projects.
JDM Structures is a family-owned business dedicated to building high-quality custom homes, learn more from our JDM Structures website about our story, and our mission to bring innovation into your home.





