Crawlspace: $242,838 | Basement: $273,272
1367 sq/ft | Cape Cod | 3 bedroom | 2 baths
The Appleton II is one of our more spacious Cape Cod homes.
Offering 1,367 square feet on the main floor, plus 746 square feet of upstairs space that can be finished for additional bedrooms or living areas—or left unfinished for future flexibility. With 3–4 bedrooms and 2-3 baths, this home is ideal for growing families or homeowners who want room to evolve over time.
As with all traditional Cape Cod homes, the Cape Cod roofline, efficient main-floor plan, and versatile second level create both charm and long-term practicality.
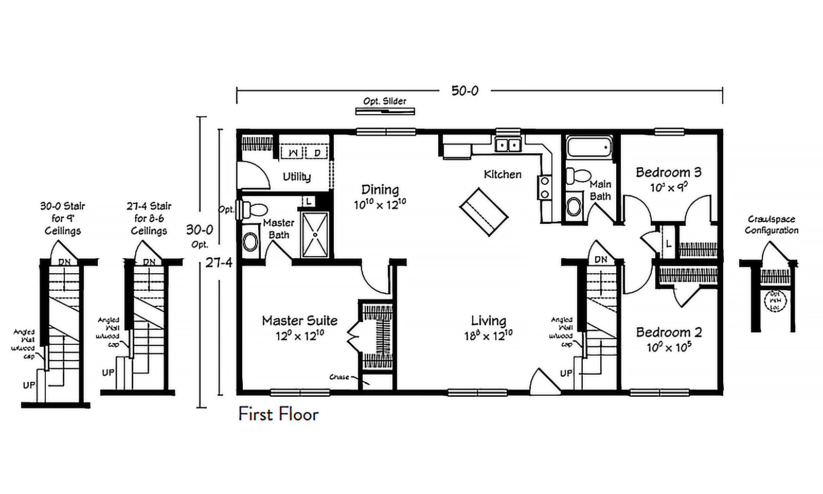
Floor Plan:
JDM Homes is an authorized builder for:
The largest family-owned, off-site, modular home manufacturer in the United States. Ritz-Craft’s custom designed modular homes utilize today’s latest and most proven construction methods to meet or exceed state home building codes — and your dream home expectations.
Appleton II Gallery
Cape Cod–style homes feature classic steep rooflines, charming symmetry, and a warm, cottage-like feel that never goes out of style. Their efficient layouts and optional expandable second floors make them a smart, flexible choice for families, downsizers, and first-time homebuilders alike. Every design can be customized to fit your lifestyle and preferences.
Standard Price Includes:
-
Fully Finished Main Level
-
Standard HVAC Package
-
Electrical Connections
-
Plumbing Connections
More from JDM Homes
These beautiful Cape Cod homes are customizable and permanent dwellings that are characterized by methods for quick assembly of the various sections of the structure, unlimited flexibility of materials and layout, and building standards that ensure your structure meets federal and local building codes. JDM Homes strives to continuously innovate and provide premier home constructions that will meet whatever your need is. If you’re interested in other types of projects, check out some of our other dwelling structures such as A-Frame cottages, as well as our fully custom home projects.
JDM Structures is a family-owned business dedicated to building high-quality custom homes, learn more from our JDM Structures website about our story, and our mission to bring innovation into your home.

