Greenway

Crawlspace: $255,730 | Basement: $287,479

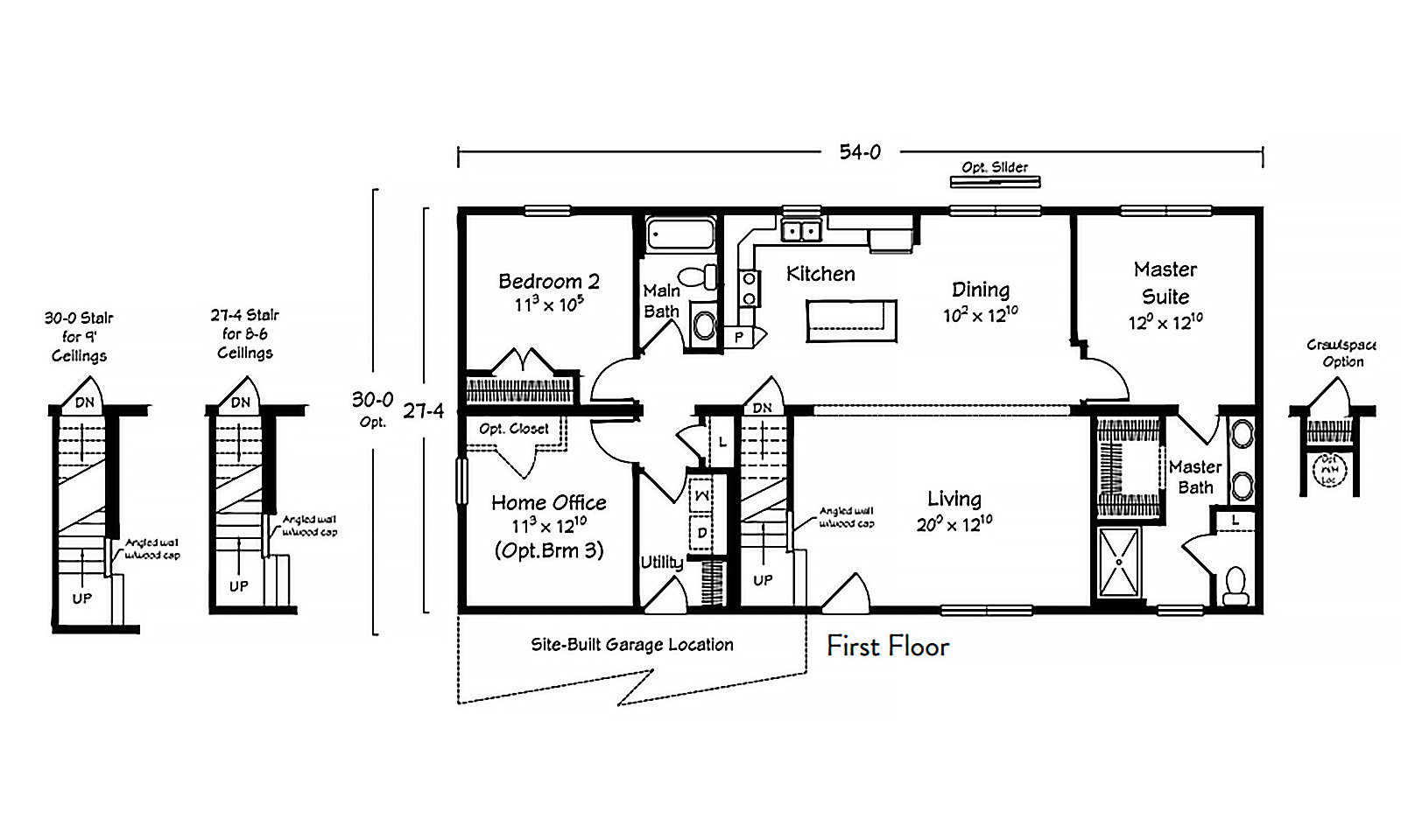
1476 sq/ft | Cape Cod | 2 bedroom | 2 baths

The Greenway demonstrates why JDM Homes offers the best modular homes in Ohio.

Consistent with all the best modular homes in Ohio, this home is a perfect example of luxury melded with affordability. The Greenway features 1,476 square feet on the main floor, along with 805 square feet upstairs that can be finished for extra living space or kept unfinished for storage or future expansion. With 2–5 bedrooms and 2 baths, it’s a highly versatile Cape Cod design.

Its charming curb appeal, spacious main-floor layout, and large unfinished upper level make the Greenway perfect for families who value both beauty and flexibility.


Floor Plan:

JDM Homes is an authorized builder for:

Ritz-Craft

The largest family-owned, off-site, modular home manufacturer in the United States. Ritz-Craft’s custom designed modular homes utilize today’s latest and most proven construction methods to meet or exceed state home building codes — and your dream home expectations.


More from JDM Homes

The best modular homes in Ohio are customizable and permanent dwellings that are characterized by methods for quick assembly of the various sections of the structure, unlimited flexibility of materials and layout, and building standards that ensure your structure meets federal and local building codes. JDM Homes strives to continuously innovate and provide premier home constructions that will meet whatever your need is. If you’re interested in other types of projects, check out some of our other dwelling structures such as A-Frame cottages, as well as our fully custom home projects.

JDM Structures is a family-owned business dedicated to building the best modular homes in Ohio and high-quality custom homes, learn more from our JDM Structures website about our story, and our mission to bring innovation into your home.