Crawlspace: $215,487 | Basement: $243,003
1148 sq/ft | Cape Cod | 1 bedroom | 1.5 baths
Among JDM Home's best modular homes, the Annandale II is an efficient Cape Cod style model blending ease with customizability.
This modular home offering 1,148 square feet on the main floor, plus 643 square feet of optional expandable upstairs space. With options for 1–3 bedrooms and 1.5 - 2.5 baths, this flexible layout is ideal for first-time homebuilders or those looking to downsize without sacrificing comfort.
Its classic Cape Cod roofline, optional upstairs living space, and customizable finishes make it a practical yet charming choice.
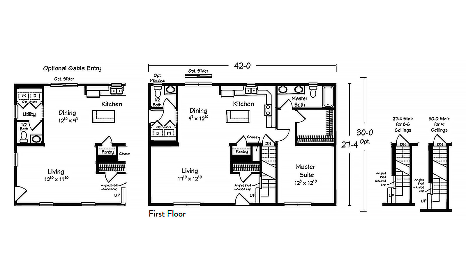
Floor Plan:
JDM Homes is an authorized builder for:
The largest family-owned, off-site, modular home manufacturer in the United States. Ritz-Craft’s custom designed modular homes utilize today’s latest and most proven construction methods to meet or exceed state home building codes — and your dream home expectations.
Annadale II Gallery
Cape Cod–style homes feature classic steep rooflines, charming symmetry, and a warm, cottage-like feel that never goes out of style. Their efficient layouts and optional expandable second floors make them a smart, flexible choice for families, downsizers, and first-time homebuilders alike. Every design can be customized to fit your lifestyle and preferences.
Standard Price Includes:
-
Fully Finished Main Level
-
Standard HVAC Package
-
Electrical Connections
-
Plumbing Connections
More from JDM Homes
The best modular homes are customizable and permanent dwellings that are characterized by methods for quick assembly of the various sections of the structure, unlimited flexibility of materials and layout, and building standards that ensure your structure meets federal and local building codes. JDM Homes strives to continuously innovate and provide premier home constructions that will meet whatever your need is. If you’re interested in other types of projects, besides our best modular homes, check out some of our other dwelling structures such as A-Frame cottages, as well as our fully custom home projects.
JDM Structures is a family-owned business dedicated to building high-quality custom homes, learn more from our JDM Structures website about our story, and our mission to bring innovation into your home.


